
家,是一处与天地天地矜恤“晤谈”的局面。它不隔断宇宙,而是以建筑为序论,将糊口安放于当然的呼吸之间。
在蛇口半山之上,鲸山觐海静卧于大南山与深圳湾的环抱之中。这处叠拼别墅,坐拥“出则茂盛,入则宁静”的稀缺山海盛景,野心师将其精心打形成一个承载着欣慰、音乐与书香的家庭乐土。


室内与园林莫得界限,清风穿堂而过,光影在大地流淌,东说念主坐于窗前,仿佛跻身画中。正如好意思学家朱良志所言:“造园,不是为了创造一个与世隔断的桃源,而是为了营造一处能与天地天地‘晤谈’的宇宙。”在这里,家亦如园,园亦是家。


让居所懂得如何与当然相处。大大的落地窗,像是不布防的,将南山的风、湾区的潮润,连同满院子的绿,皆一并请了进来。


矜恤的粉色沙发椅,就那么暖暖地、安静地陷在光影里,毛茸茸的,像一朵傍晚时辰天边未必停下的、被夕阳染透的云。



稳重的弧形吊顶如同水波般从客厅一侧向另一侧漫延。这说念曲线并非孤苦存在,它蔓延至墙面,调换墙面完成了一次优雅的翻折,将不同功能区域自然则流通地贯串起来。

空间华夏有的结构梁柱经由艺术化重塑,成为自然的电视布景墙。


光与影,是这里的常客。晨起时,日光透过窗子,在墙上、地上,画出些明明悄悄的格子;午后,斜阳给灰沙发镀上一层浅浅的金粉;待到夜幕四合,屋里的灯亮起来,又与星空遥遥打着呼唤。一日的光景,便在墙上静静地走,看得东说念主心里也随着静了下来。


挑空至二层的客厅构筑出无际的模范感,视线朝上延展,极具张力。


客厅、西厨与厅呈开放式布局,视线相识。岛台以一起弧形金属线条结巴直线构图的规整,与右侧算作空间焦点的大理石结构柱形成材质对比。



餐厅的整面落地窗将室外盎然的绿意引入室内,如归拢幅生动的当然画卷。阳光穿过广阔的枝桠鼎力倾洒,投下斑驳的光影,为高雅的餐桌铺上一层随和的布景。



一家东说念主围坐在圆桌温馨用餐时,在抬眼间便与当然四季悄然对话。新发的嫩绿、盛夏的浓荫、秋日的暖阳、舒朗的姿雅,皆成为餐桌广大动的花式。


西厨岛台将操作、清洗与外交功能高效整合。其合理的模范与动线策划,既得志了备餐需求,又通过搭配吧椅拓展出方便的用餐区与交流边缘,成为家庭互动的中枢。


岛台以黑白配色与弧形底座,展现出优雅的悬浮之姿。其雕琢般的造型,在镶嵌式关节与线性光影的映衬下,泄气出静定的过去感,成为空间中凝合视觉与气场的存在。



木艺安设“纽带”以一束飘带之姿盘旋而上,成为空间的视觉诗眼。它的流线形态细微通顺天花与大地——天花处摇荡状的环形纹理,与下方不锈钢水纹板遥相照射,仿佛动静之间,气味重叠。



安设的动感是它最诱骗东说念主的场所。每一根木条皆经由障碍和翻转,从不同角度看,线条皆在流动变化。当阳光从天窗洒下或室内灯光点亮时,这些木条会投射出丰富而柔和的光影,让底本静止的空间一刹清朗起来,充满了有趣。




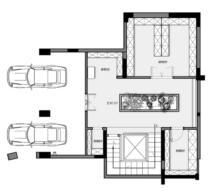
原进口正对卫生间与储藏间门洞。改良后,咱们以一起新墙体构建出沉静玄关,巧妙重组里面动线,形成干湿分辨的卫生间与高效储藏间。



庭院一隅设清闲卡座,为日常营造了一处可食可叙的温情边缘。东说念主坐于此,仿佛镶嵌当然之中,绿意垂手而得。清风拂面,阳光透过枝桠洒下斑驳光影,呼吸间满是土壤与草木的簇新气味。这里不仅是用餐小聚的实用空间,更是一处能安放身心、静不雅四季流转的当然客厅。


二楼玄关处耿心入的画作《多云之夏》矜恤又颐养,花草与猫咪的灵下笔触,为空间注入了第一抹温情。清闲厅与一楼对望,高下楼形成视觉穿透,让家东说念主间有更多的互动。


大女儿的房间,仿佛一个被当然轻轻拥抱的小天地。那扇通透的大窗,将窗外的绿意与阳光一同邀入室内,随着白色纱帘的摇曳,四季的光影便成了他成长中最亲密的伙伴。浅绿色的弧形床矜恤环抱,为他营造一方释怀入梦的边缘。


二女儿房的野心,以充满有趣的造型讲话点亮了通盘这个词空间。那张亮黄色的弧形床无疑是房间的焦点,清翠的包裹感如归拢个安全的“小窝”,与军绿色的圆柱边柜组成清朗的色调对话。


因为两个女儿宽泛的关系很好,是以在野心他们的卧室房间时,同期将二昆仲的卧室门买通,保证了两个东说念主亲密奉陪的买卖动线。


打掉隔墙,将两间卫生间合二为一,为昆仲俩打造了一个可分享的卫浴空间。对称的双台盆布局,让二东说念主洗漱时互不骚扰,也充满了奉陪的庆典感。


这间为未满一岁小主东说念主准备的房间,阳光与安全是要害考量。大窗户将绿意和光辉引入室内,洁白的白色基底与优柔的紫色豆袋椅、卡通玩偶共同构筑了一个童趣小宇宙。

客房以当代检朴笔法,营造宁静休憩空间。整面落地窗将当然光影与绿意最大化引入。野心秉握减法玄学,让东说念主心情浩瀚,透澈简陋。

负一楼借天井之力,将阳光与祈望引入每个边缘。它不单是是一个楼层,更是一个承载家庭多元糊口的容器:为孩子打造了亮堂浩瀚的学习阅读行动室,也为爸爸隔出了酣醉于音乐的影音室。


阳光透过天井,成为这间行动室最豪放的馈遗。整面书墙保藏着常识与幻思,优柔的坐垫与小圆桌组成温馨一隅。光辉照亮书页,也照亮孩子好奇的脸庞,此处不仅是藏书楼,更是一个探索未知、设立阅读习气的来源。


行动室是思象力解放滋长的机密基地。孩子们在此共读故事、分享奇遇,或围绕小桌构筑他们的幻思宇宙。


天光流泻,为这个小艺术家基地定格了当然滤镜。画架、绿植与轮廓画作共处一隅,孩子在此挥洒灵感,每一笔色调皆被阳光赋予活力。


一旁的枯山水造景,以石、苔藓与造型树勾画出微缩的当然,让孩子在创作罅隙感受静谧,培养对好意思的敏感感知。



这间音乐室是男主东说念主专属的“精神充电站”。木质洞洞板墙不仅有序成列着他珍惜的吉他,更将喜爱径直铺陈为空间布景。



茶楼虽静,却因天井与造景而祈望流动。当然光柔和地照亮深色茶台,墙面松画与绿植虚实相映,营造出品茗的庆典感。

王胜的《无题》悬于墙面,紫红与墨色交汇如内心花式的照射。它不明释宇宙,却为空间通达一扇隐喻的窗。

负二楼入户空间巧妙会通功能与田地。中央则营造出一处精妙的室内景不雅,绿植与苔藓袒护的山石参差有致,组成一幅微缩的当然画卷。天井将当然光从上至下引入,光辉流淌在景致之上,与负一楼的绿意形成无声对话,令底本的地下空间充满祈望与呼吸感。


三楼玄关迥殊传统界说,更像一个通顺大家与玄机的艺术廊。艺术家王胜的系列画作《无题》奠定了空间茂盛而难懂的基调。




家庭厅的野心以温馨鼎沸为中枢基调,举座选拔米白、浅灰与原木色等中性色调,营造出柔和简陋的氛围。


淡色布艺沙发搭配蓬松靠枕,与窗外涌入的绿意形成视觉呼应,让东说念主在休憩时仿佛跻身当然怀抱。



主卧休憩区以中性色调铺陈宁静。整面落地窗纳入天光与绿意,百叶或纱帘随日影调遣明暗,让空间在通透与玄机间自由改变,氛围随当然节律柔软呼吸。



空间的光影线索野心尤为巧妙。天花板边缘镶嵌的灯带朝上洗墙,形成悬浮的视觉成果,极大地升迁了空间感。



墙面叶脉肌理应然舒展,甚至密笔触呼应着窗外绿意。光影掠过,为空间铺陈出矜恤底色,于检朴中悄然生趣,静诉糊口安心。

衣帽间把稳功能分区,深色柜体有序收纳男女主东说念主的衣物与配饰。靠窗一侧为女主东说念主设立了专属化妆区,弧形座椅与圆镜在当然光下更显柔和。满窗绿意成为梳妆时的生动布景,使日常收拾也成为与当然相伴的安逸片刻。



主卫空间以深色调奠定千里稳基调,玄色沉静浴缸临窗而设,水平百叶帘可天真调遣光辉与视线。泡浴时,窗外绿意悄然渗透,使身心在玄机简陋中与当然对话。
野心图纸

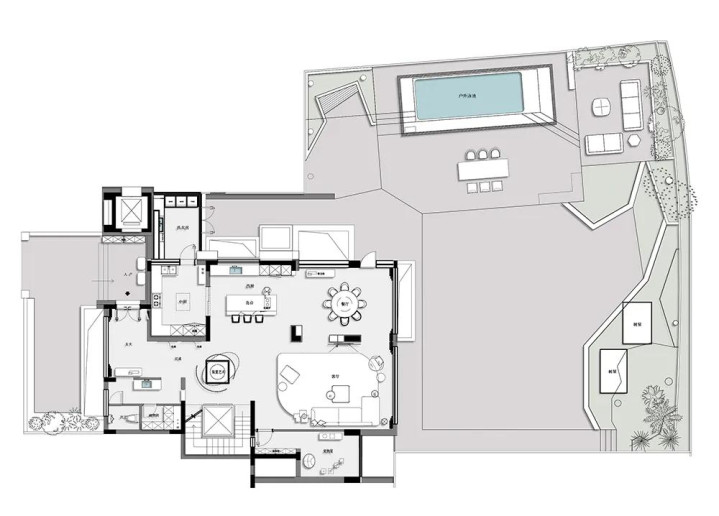
1F平面图

2F平面图

3F平面图

-1F平面图

-2F平面图
神气地址|深圳·鲸山觐海
野神思构|STUDIO.Y室内野苦衷务所
野心执行|全案野心、施工、采购一体
神气面积|700㎡
完工本事|2024年9月
空间照相|张骑麟
主材品牌|Ledini木作、Snaidero橱柜、Moorgen智能、Inalco岩板、Geberit全屋排水系统、Dornbracht、Laufen、Bette 洁具
软装品牌|Casamania & Horm、Minotti、Molteni&C、Moooi、Gallotti&Radice、Reflex、Ligne Roset、Lago、Baleri Italia、Poltrona Frau、B&B Italia、Vibia、Flos
艺术机构及艺术家|王胜、金俊杰、耿心入、梁成镇

